Апартамент Б1 / етаж 1

Апартамент Б1 / етаж 1

Изложение: запад

Print Friendly, PDF & Email

Спалня

Спалня

Read More
Дневна с трапезария

Дневна с трапезария

Read More
1 баня

1 баня

Read More
Сервизно помещение

Сервизно помещение

Read More
Дворна тераса </br>4,89 кв.м.

Дворна тераса
4,89 кв.м.

Read More
Двор</br> 19,52 кв.м.

Двор
19,52 кв.м.

Read More
Общи части </br>6,84 кв.м.

Общи части
6,84 кв.м.

Read More
Обща площ </br>58,17 кв.м.

Обща площ
58,17 кв.м.

Read More
Застроена площ </br>46,44 кв.м.

Застроена площ
46,44 кв.м.

Read More

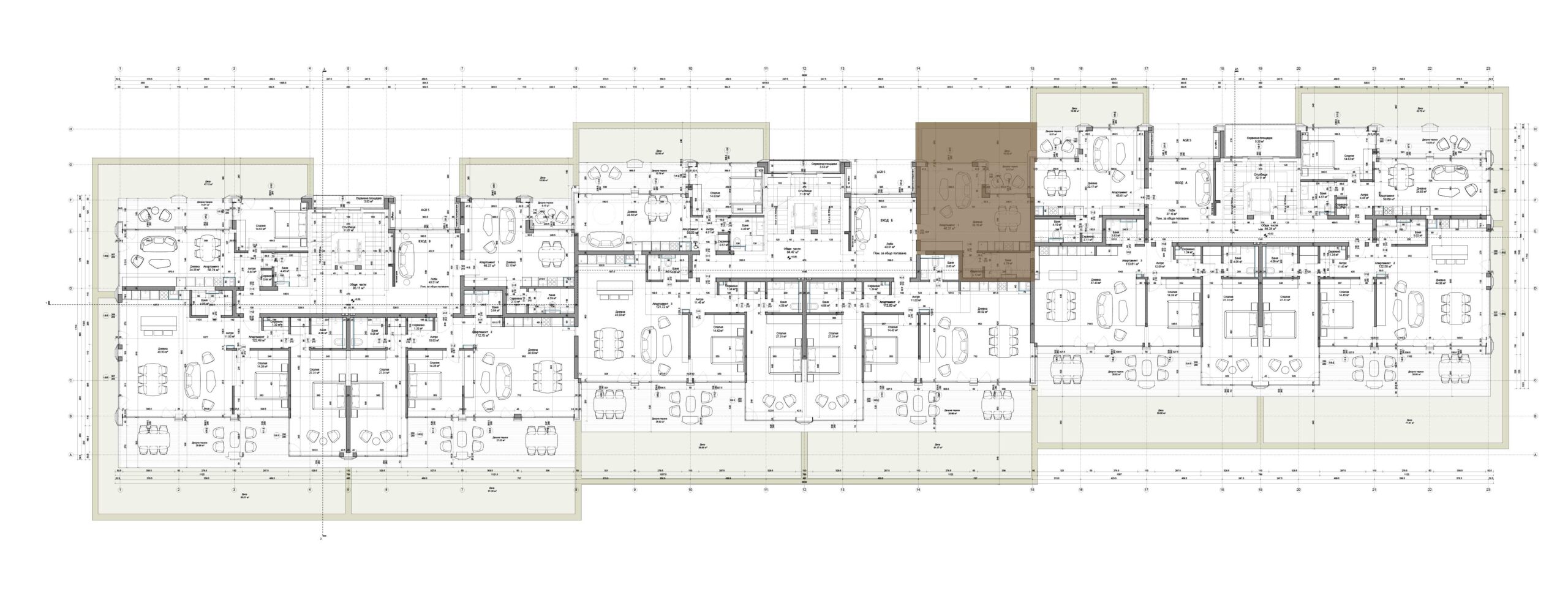
ANTEA GREEN RESIDENCE

ANTEA GREEN RESIDENCE представляват 5 броя многофамилни жилищни сгради. Сградите са с 4 надземни жилищни етажи и индивидуален подземен паркинг към всяка сграда.

Сградите AGR 1, AGR 2 и AGR 3 са разделени на два жилищни входа – вход А и вход Б. Сгради AGR 4 и AGR 5 са разделени на три жилищни входа - вход А и вход Б и вход В. За всеки вход има предвидено лоби. Към всеки от апартаментите на първи етаж има предвиден озеленен двор, а последните етажи са с големи тераси.

  • 5 сгради по 4 жилищни етажа с 1 подземно ниво.
  • Детски и спортни площадки към всяка сграда
  • Височина на помещенията – Конструктивна – 2,75 м., светла – 2,60 м.
  • Височина на помещение на последен етаж – Конструктивна – 2,90 м., светла – 2,70 м. 
  • Подземни паркоместа и складове
  • Изградена система за отопление/охлаждане с
    термопомпа на последния етаж
  • AGR 1; AGR 2; AGR3; AGR4; AGR5 със степен на завършеност мазилка и замазка. 
  • По желание на клиента, предлагаме модерно дизайнерско обзавеждане. 

ПРЕДИМСТВА НА ANTEA SEA APARTMENTS

Локация

ANTEA SEA RESIDENCE и ANTEA GREEN RESIDENCE са разположени на трета и четвърта линия от плажа, с гледка към лазурното море.

Разпределения

Архитектурата на ANTEA SEA RESIDENCE предвижда тристайни и четиристайни апартаменти с функционални разпределения, веранди на първи етаж и големи тераси на последен етаж. ANTEA GREEN RESIDENCE ще разполага и с по-малки апартаменти.

Собствен басейн

Всяка от сградите на ANTEA SEA RESIDENCE и ANTEA GREEN RESIDENCE ще разполага с голям басейн.

Климатизация

За апартаментите на последните етажи на ANTEA SEA RESIDENCE и ANTEA GREEN RESIDENCE е предвидено водно подово с индивидуална термопомпа.

Паркиране

ANTEA SEA RESIDENCE и ANTEA GREEN RESIDENCE разполагат с подземни и надземни паркоместа.

Обзавеждане на апартаменти

Възможност за интериорен дизайн по Ваше желание.